Tiraspol
- ns_3ddesign
- Anunțuri pe site: 1
- Vezi toate anunțurile autorului
- Abonează-te la autor
Дизайн-проект интерьера от студии ns_3ddesign
Создаём продуманные и функциональные интерьеры, в которых комфортно жить и приятно находиться.
Работаем внимательно к деталям и учитываем образ жизни каждого клиента.
Что входит в дизайн-проект:
• Замеры помещения и подробное анкетирование
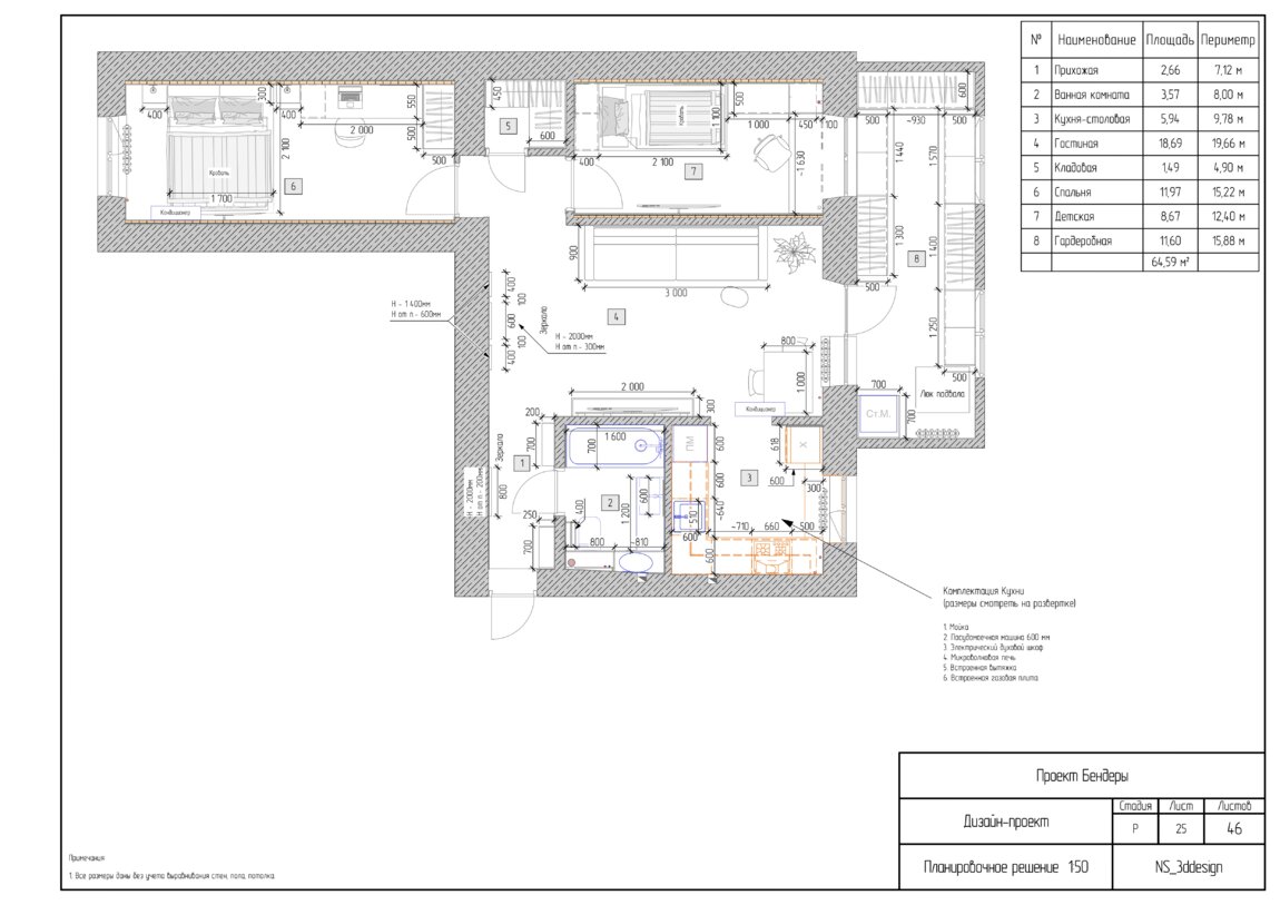
• Обмерный план и планировочные решения
• Разработка концепции интерьера
• 3D-визуализация будущего пространства
• Полный комплект рабочих чертежей для строителей
• Подбор материалов
Проект включает всё необходимое для понятной и последовательной реализации ремонта.
Почему наши клиенты выбирают нас:
• Индивидуальный подход - учитываем задачи, стиль и бюджет
• Точность - профессиональные замеры и продуманная документация
• Опыт - более 5 000 м² разработанных проектов в Молдове, Приднестровье и России
• Удалённая работа - ведём проекты онлайн
• Прозрачность - понятные этапы и удобное взаимодействие
Если вы планируете ремонт и хотите заранее понимать итоговый результат, обращайтесь! Будем рады помочь!
Для связи:
Telegram: ns_3ddesign
Instagram: ns_3ddesign
https://www.instagram.com/ns_3ddesign?igsh=Y3AyZzY1bjFkN2J1
Taplink:
https://ns3ddesign.taplink.ws
Google: https://share.google/b2yY8sCUr6tjEUAwY
Создаём продуманные и функциональные интерьеры, в которых комфортно жить и приятно находиться.
Работаем внимательно к деталям и учитываем образ жизни каждого клиента.
Что входит в дизайн-проект:
• Замеры помещения и подробное анкетирование
• Обмерный план и планировочные решения
• Разработка концепции интерьера
• 3D-визуализация будущего пространства
• Полный комплект рабочих чертежей для строителей
• Подбор материалов
Проект включает всё необходимое для понятной и последовательной реализации ремонта.
Почему наши клиенты выбирают нас:
• Индивидуальный подход - учитываем задачи, стиль и бюджет
• Точность - профессиональные замеры и продуманная документация
• Опыт - более 5 000 м² разработанных проектов в Молдове, Приднестровье и России
• Удалённая работа - ведём проекты онлайн
• Прозрачность - понятные этапы и удобное взаимодействие
Если вы планируете ремонт и хотите заранее понимать итоговый результат, обращайтесь! Будем рады помочь!
Для связи:
Telegram: ns_3ddesign
Instagram: ns_3ddesign
https://www.instagram.com/ns_3ddesign?igsh=Y3AyZzY1bjFkN2J1
Taplink:
https://ns3ddesign.taplink.ws
Google: https://share.google/b2yY8sCUr6tjEUAwY
- Tiraspol
- +37377 706916